3468 Napier AvenueMacon, GA 31204




Mortgage Calculator
Monthly Payment (Est.)
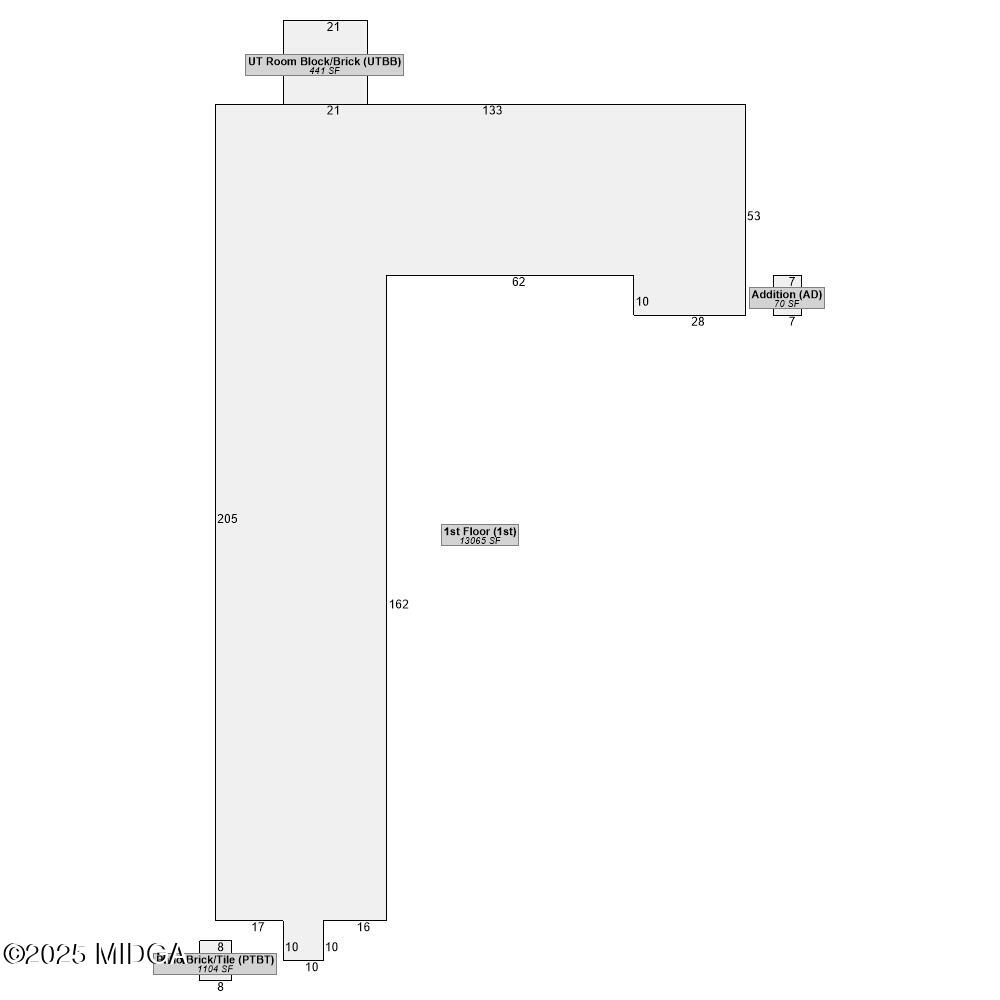
$2,185Prime Commercial Opportunity at Log Cabin Drive & Napier Avenue! Unlock the potential of this highly visible commercial property positioned at the busy intersection of Log Cabin Drive and Napier Avenue. Offering two distinct commercial spaces, this property invites investors to bring a new vision to life. **Main Building:** ~30,837 ± sq ft (former nursing home) - **Secondary Building:** ~2,288 ± sq ft **Property Overview:** - 5-acre commercial/institutional tract improved with a former 180+-bed skilled nursing facility, which is currently non-operational and secured. **Property Offers:** - Significant existing building footprint - Institutional use history - Utilities, sewer, and infrastructure in place - Ample parking and access - Priced at $499,000 (below county tax assessment) - Immediate redevelopment or reposition opportunity **Ideal Uses:** - Behavioural health conversion - Inpatient rehabilitation - Senior housing reposition - Veteran or transitional housing - Church, school, or nonprofit adaptive reuse - Multifamily redevelopment (previous healthcare facility zoning request was approved and documented with Bibb County Planning and Zoning)
| 2 months ago | Price changed to $479,000 | |
| 2 months ago | Listing updated with changes from the MLS® | |
| 4 months ago | Listing first seen on site |
Listings identified with the MGMLS logo come from MGMLS and are held by brokerage firms other than the owner of this website. The listing brokerage is identified in any listing details. Information is deemed reliable but is not guaranteed. If you believe any MGMLS Listing contains material that infringes your copyrighted work please click here to review our DMCA policy and learn how to submit a takedown request. © 2026 Bibb Multi List, Inc. d/b/a Mid Georgia MLS
Last checked: 2026-04-18 09:43 PM UTC

Did you know? You can invite friends and family to your search. They can join your search, rate and discuss listings with you.